Villa · New Build Fuente Álamo · Costa Calida - Inland

242.000€

Ref. NB-33963

Villa · New Build Fuente Álamo · Costa Calida - Inland

Features

  • Meters.

    Meters.

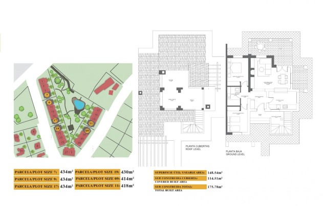
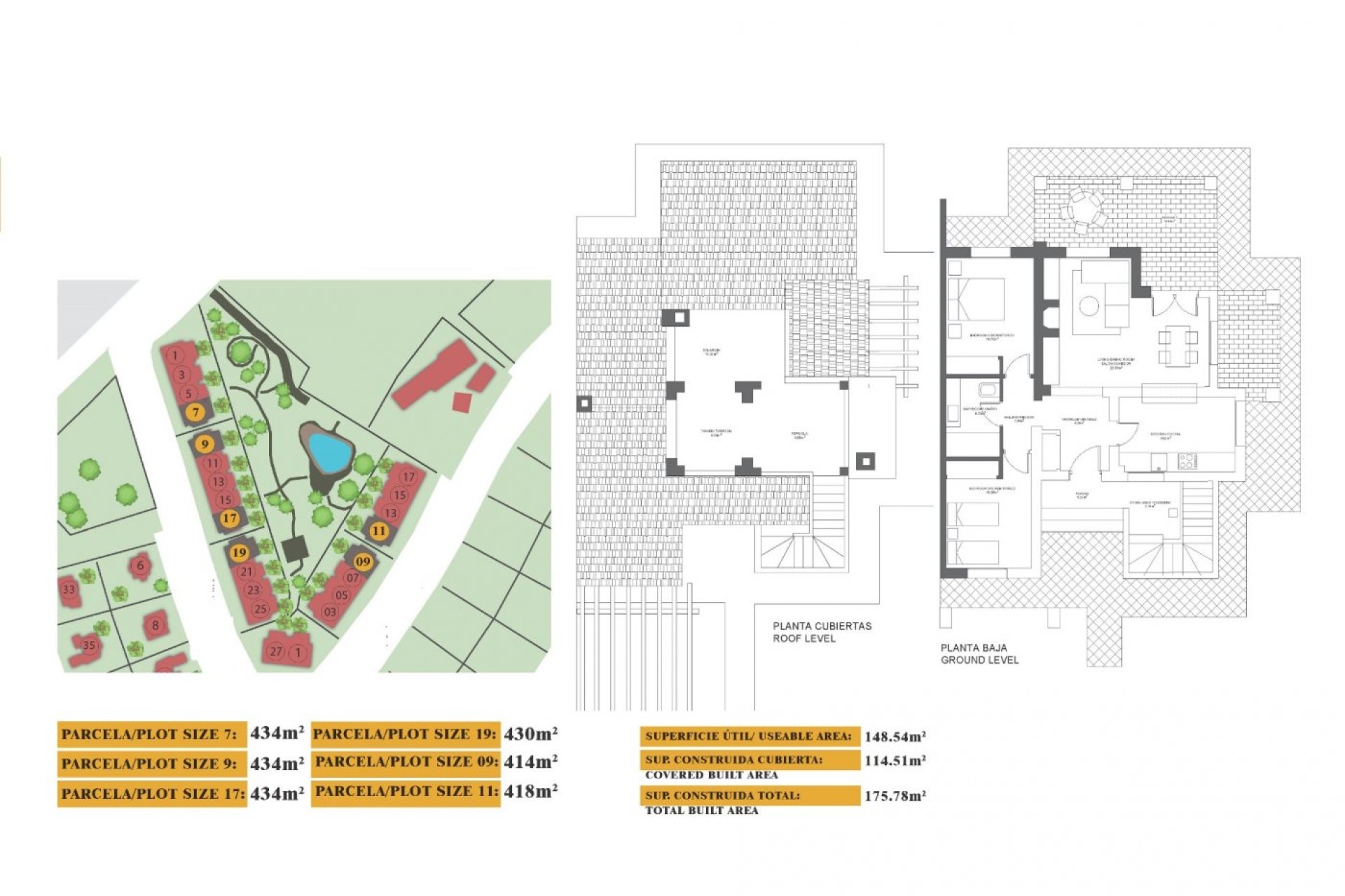
    175m2
  • Plot.

    Plot.

    430m2
  • Bedrooms.

    Bedrooms.

    2
  • Bathrooms.

    Bathrooms.

    1
Bedrooms Bedrooms:

2

Bathrooms Bathrooms:

1

Built Built:

175m2

Usable Usable:

148m2

Plot Plot:

430m2

Distance to beach Distance to beach:

7500 Mts.

Key Ready
Gated
Double Bedrooms: 2
Garden
Number of Parking Spaces: 1
Near Golf / Golf Resort Property
Air Conditioning: Pre-Installed
Terrace: 45 Msq.
Location: Coastal, Rural, Urbanisation
Beach: 7500 Meters
Useable Build Space: 148 Msq.
Parking - Space
Storage / Trastero

Description

Location

Data Controller: Luxe Vastgoed Groep, Purpose of Processing: Management and control of the services offered through the Real Estate Services website, Sending information via newsletter and others, Legal Basis: By consent, Recipients: Data will not be shared, except for accounting purposes, Rights of Interested Parties: Access, rectify, and delete data, request its portability, object to processing, and request its limitation, Source of Data: The Data Subject, Additional Information: You can consult additional and detailed information on data protection Here.

Proverbs 22:1 - A good name is more desirable than great riches; to be esteemed is better than silver or gold.

In Jesus we believe
In Jesus we believe
WhatsApp